flatscraper - logo
Ekobyty III
Ekobyty III - map
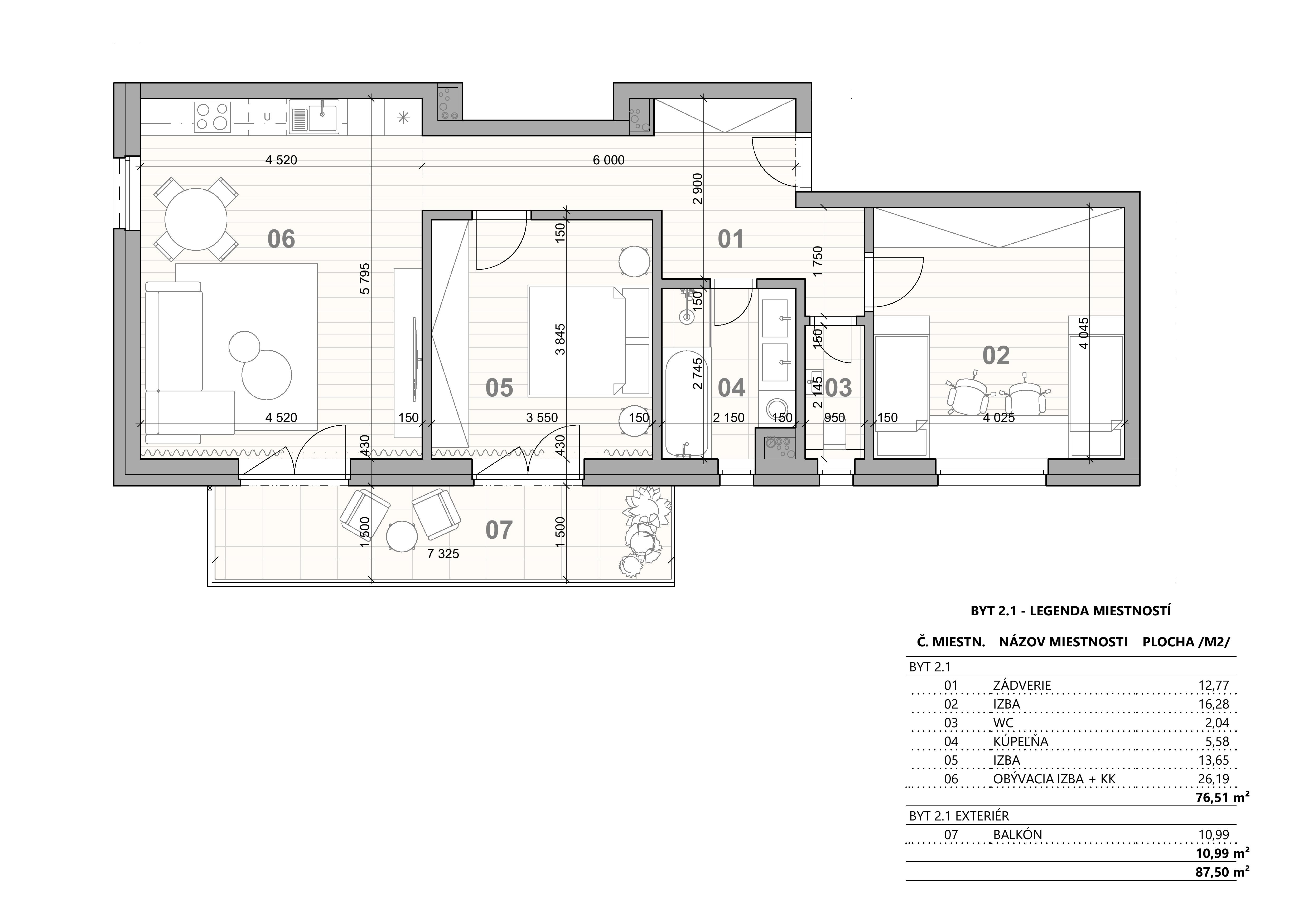
byt:
2.1
Projekt:
Mesto / Obec:
Typ:
3-izbový byt
Poschodie:
2.NP
Rozloha:
76.51 m²
Exteriér:
10.99 m²
Cena:
-
Dostupnosť:
voľný
Moja Nehnuteľnosť
Profesionálna kalkulačka pre investície do nehnuteľností
Kontakt:
Ekobyty III - 2.1 - Pôdorys
zdroj: https://ekobytysvit.sk/2-podlazie/byt-2-1/