flatscraper - logo
Hríby
Hríby - map
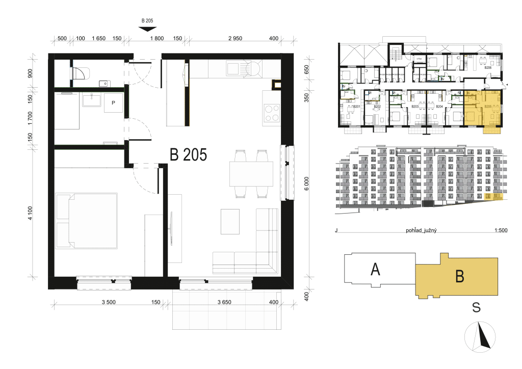
byt:
Projekt:
Mesto / Obec:
Typ:
2-izbový byt
Poschodie:
2.NP
Rozloha:
56.3 m²
Balkón:
4.69 m²
Cena:
145 255 €
Dostupnosť:
voľný
Moja Nehnuteľnosť
Profesionálna kalkulačka pre investície do nehnuteľností
Hríby - B205 - Pôdorys
zdroj: https://www.bytyhriby.sk/byt/dvojizbovy-byt-ruzomberok-b205/