flatscraper - logo
Bell Residence
Bell Residence - map
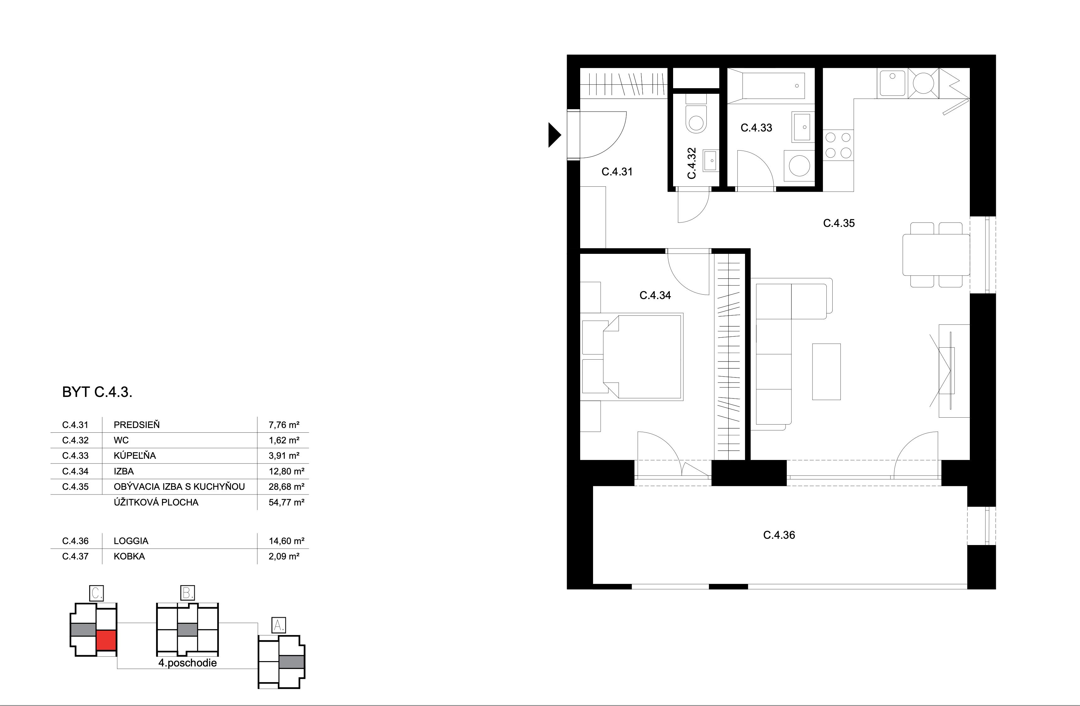
byt:
Budova:
C
Projekt:
Mesto / Obec:
Typ:
2-izbový byt
Poschodie:
4.NP
Rozloha:
54.77 m²
Cena:
208 000 €
Dostupnosť:
voľný
Moja Nehnuteľnosť
Profesionálna kalkulačka pre investície do nehnuteľností
Bell Residence - C.4.3 - Pôdorys
zdroj: https://bellresidence.sk/byt?flat=C-4-3