flatscraper - logo
Bell Residence
Bell Residence - map
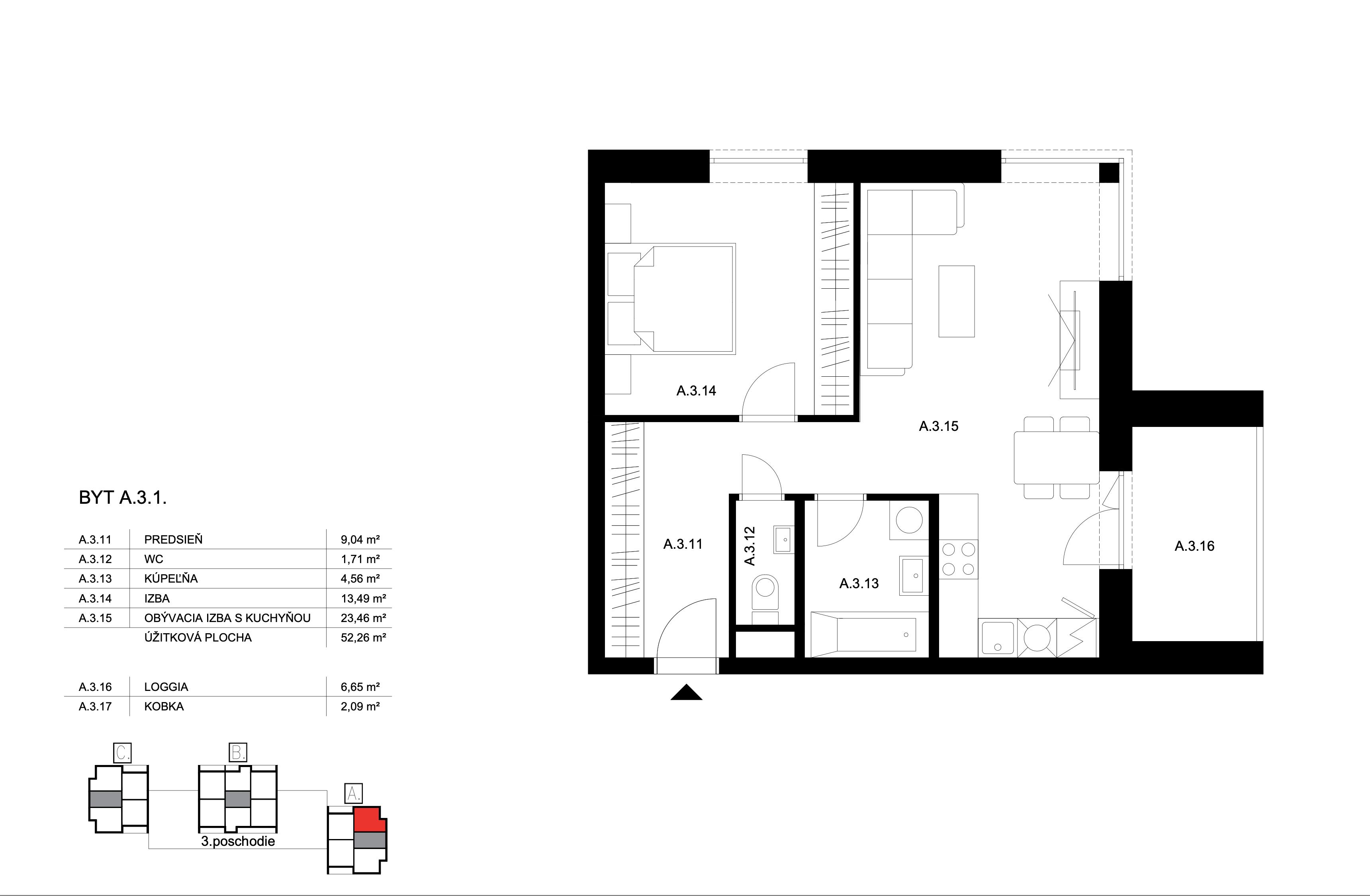
byt:
Budova:
A
Projekt:
Mesto / Obec:
Typ:
2-izbový byt
Poschodie:
3.NP
Rozloha:
52.26 m²
Cena:
183 500 €
Dostupnosť:
voľný
Moja Nehnuteľnosť
Profesionálna kalkulačka pre investície do nehnuteľností
Bell Residence - A.3.1 - Pôdorys
zdroj: https://bellresidence.sk/byt?flat=A-3-1