flatscraper - logo
Galandov majer
Galandov majer - map
byt:
Projekt:
Mesto / Obec:
Typ:
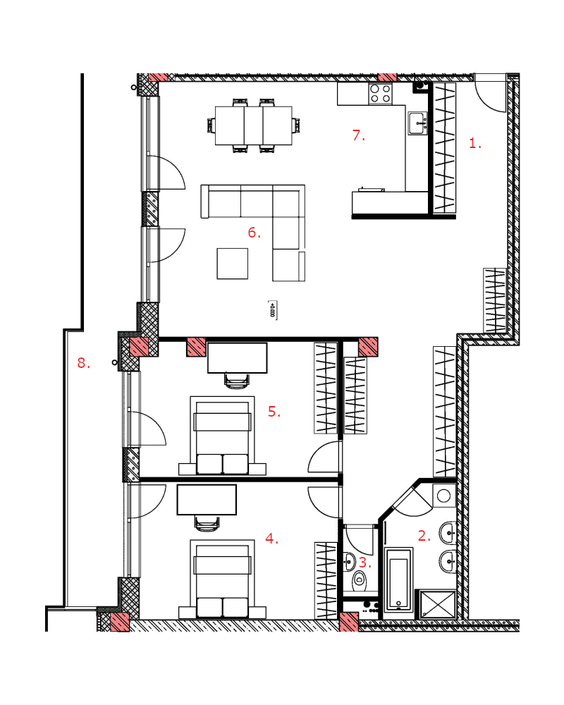
3-izbový byt
Poschodie:
1.NP
Rozloha:
138.37 m²
Cena:
254 200 €
Dostupnosť:
voľný
Moja Nehnuteľnosť
Profesionálna kalkulačka pre investície do nehnuteľností
Galandov majer - V9.1.2 - Pôdorys
zdroj: https://galandovmajer.sk/byt/v9-1-2/