flatscraper - logo
Galandov majer
Galandov majer - map
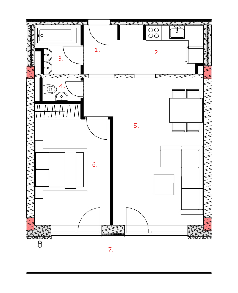
byt:
Projekt:
Mesto / Obec:
Typ:
2-izbový byt
Poschodie:
2.NP
Rozloha:
61.3 m²
Cena:
123 500 €
Dostupnosť:
voľný
Moja Nehnuteľnosť
Profesionálna kalkulačka pre investície do nehnuteľností
Galandov majer - K14.2.1 - Pôdorys
zdroj: https://galandovmajer.sk/byt/k14-2-1/