flatscraper - logo
Zion residence
Zion residence - map
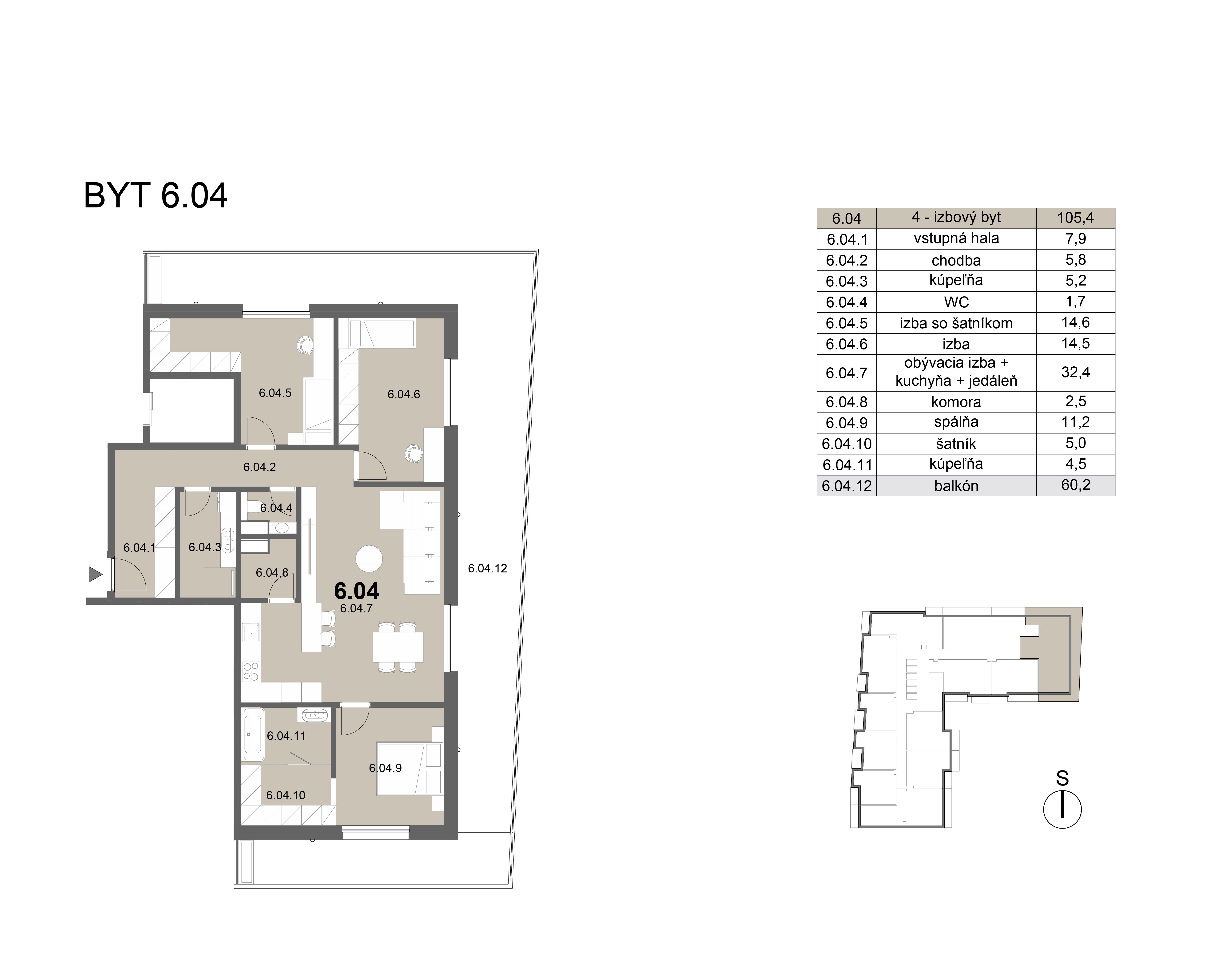
byt:
Projekt:
Mesto / Obec:
Typ:
4-izbový byt
Poschodie:
6.NP
Rozloha:
105.4 m²
Balkón:
60.9 m²
Cena:
493 505 €
Dostupnosť:
voľný
Moja Nehnuteľnosť
Profesionálna kalkulačka pre investície do nehnuteľností
Kontakt:
Zion residence - 6.04 - Pôdorys
zdroj: https://www.zionresidence.sk/byty/6-04/