flatscraper - logo
Rezidencia Čížik
Rezidencia Čížik - map
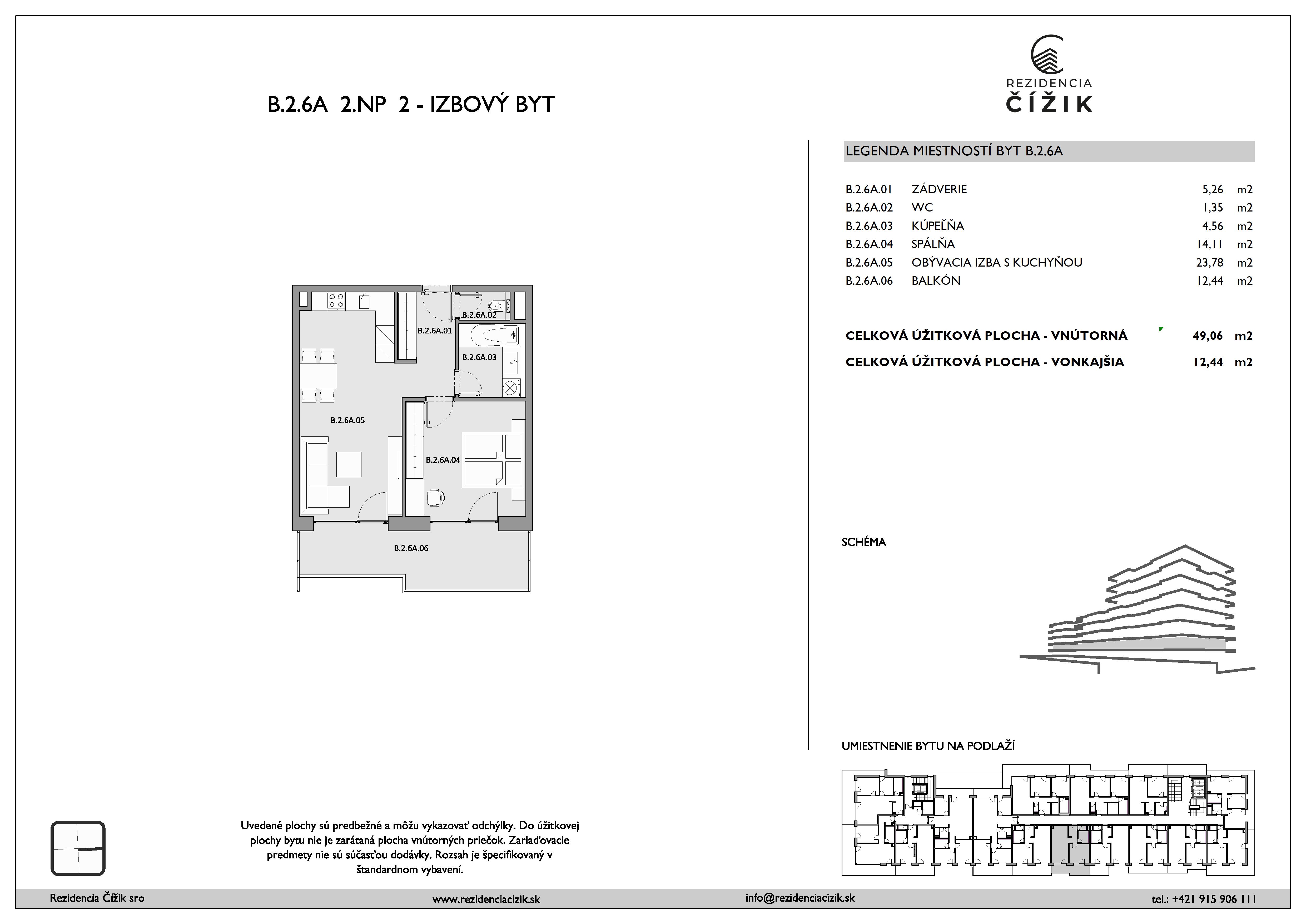
byt:
Mesto / Obec:
Typ:
2-izbový byt
Rozloha:
49.06 m²
Balkón:
12.44 m²
Cena:
229 990 €
Dostupnosť:
voľný
Moja Nehnuteľnosť
Profesionálna kalkulačka pre investície do nehnuteľností
Rezidencia Čížik - B.2.6A - Pôdorys
zdroj: https://bytycizik.sk/priestory/B.2.6A