flatscraper - logo
Sky Park
Sky Park - map
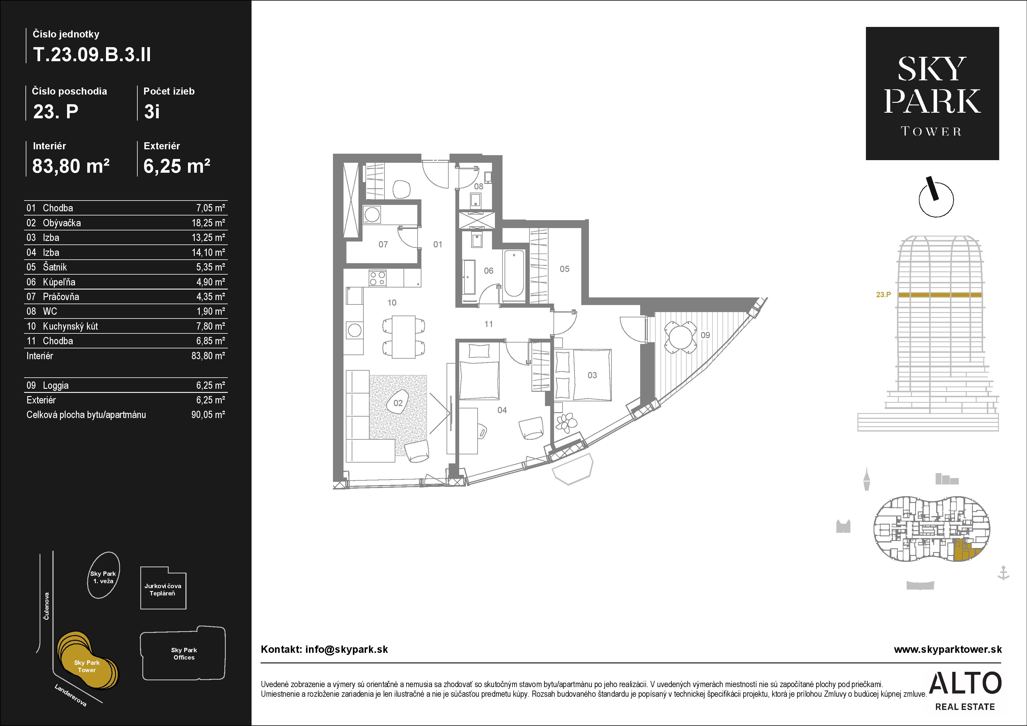
byt:
Budova:
Sky Park Tower
Projekt:
Mesto / Obec:
Typ:
3-izbový byt
Poschodie:
23.NP
Rozloha:
83.8 m²
Exteriér:
6.25 m²
Cena:
669 900 €
Dostupnosť:
voľný
Moja Nehnuteľnosť
Profesionálna kalkulačka pre investície do nehnuteľností
Kontakt:
Sky Park - T.23.09 - Pôdorys
zdroj: https://www.skyparktower.sk/apartment/T.23.09/