flatscraper - logo
Rezidencia Suchý Vrch
Rezidencia Suchý Vrch - map
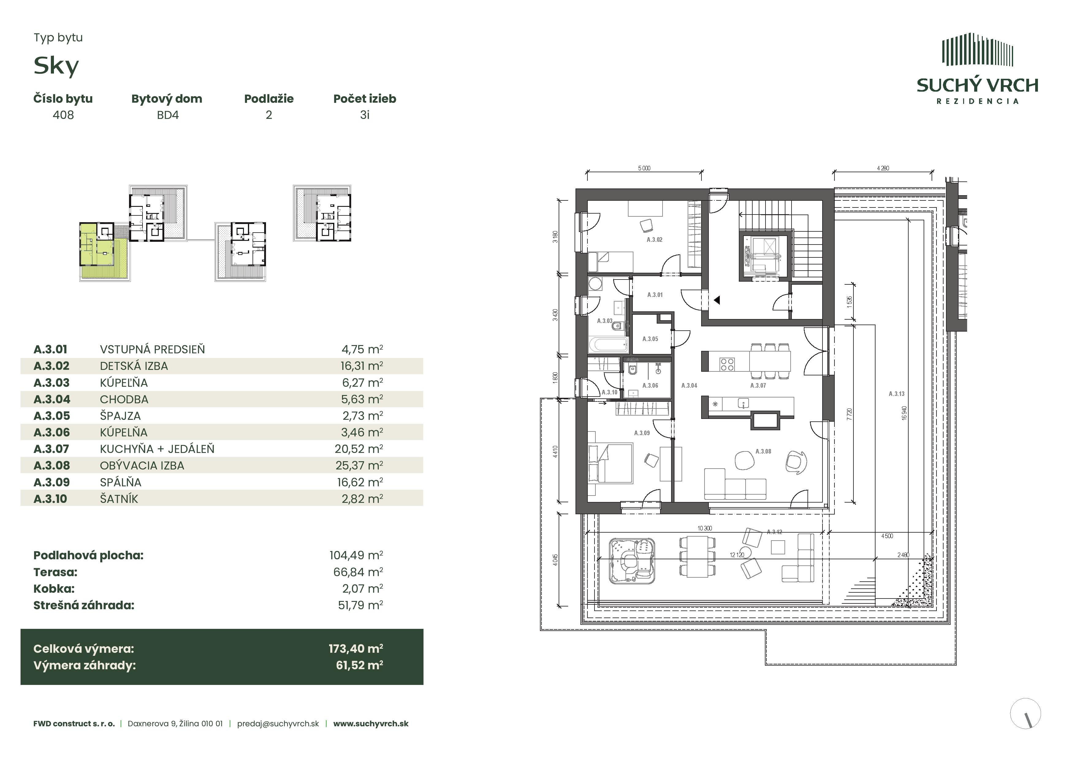
byt:
408
Budova:
BD4
Mesto / Obec:
Typ:
4-izbový byt
Poschodie:
3.NP
Rozloha:
170.81 m²
Cena:
565 900 €
Dostupnosť:
voľný
Moja Nehnuteľnosť
Profesionálna kalkulačka pre investície do nehnuteľností
Rezidencia Suchý Vrch - 408 - Pôdorys
zdroj: https://www.suchyvrch.sk/byt/408