flatscraper - logo
Byty na Hornej
Byty na Hornej - map
byt:
Projekt:
Mesto / Obec:
Typ:
2-izbový byt
Poschodie:
1.NP
Rozloha:
54.05 m²
Cena:
-
Dostupnosť:
voľný
Moja Nehnuteľnosť
Profesionálna kalkulačka pre investície do nehnuteľností
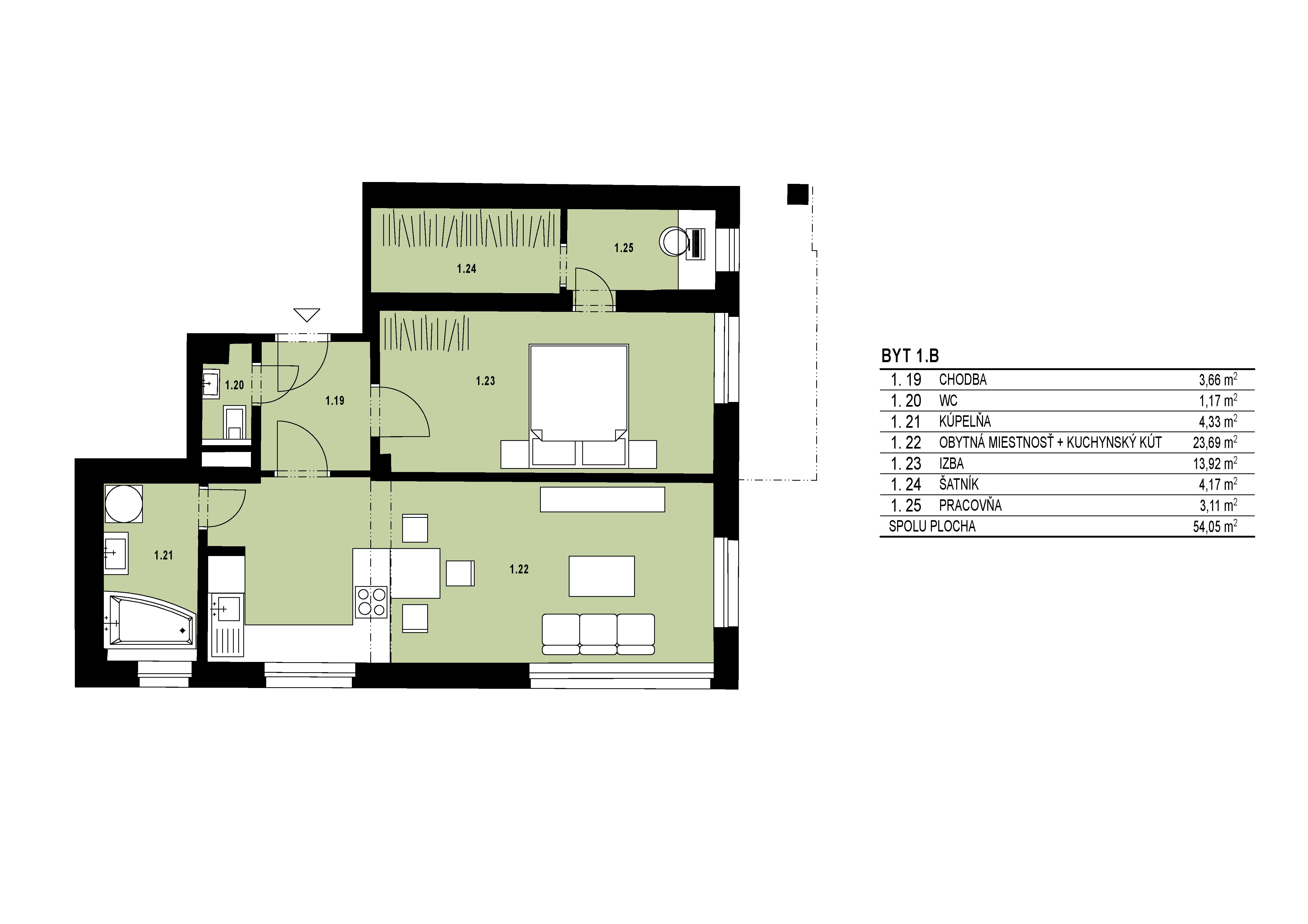
Byty na Hornej - 1.B - Pôdorys
zdroj: https://www.bytynahornej.sk