flatscraper - logo
Rezidencia Potôčik
Rezidencia Potôčik - map
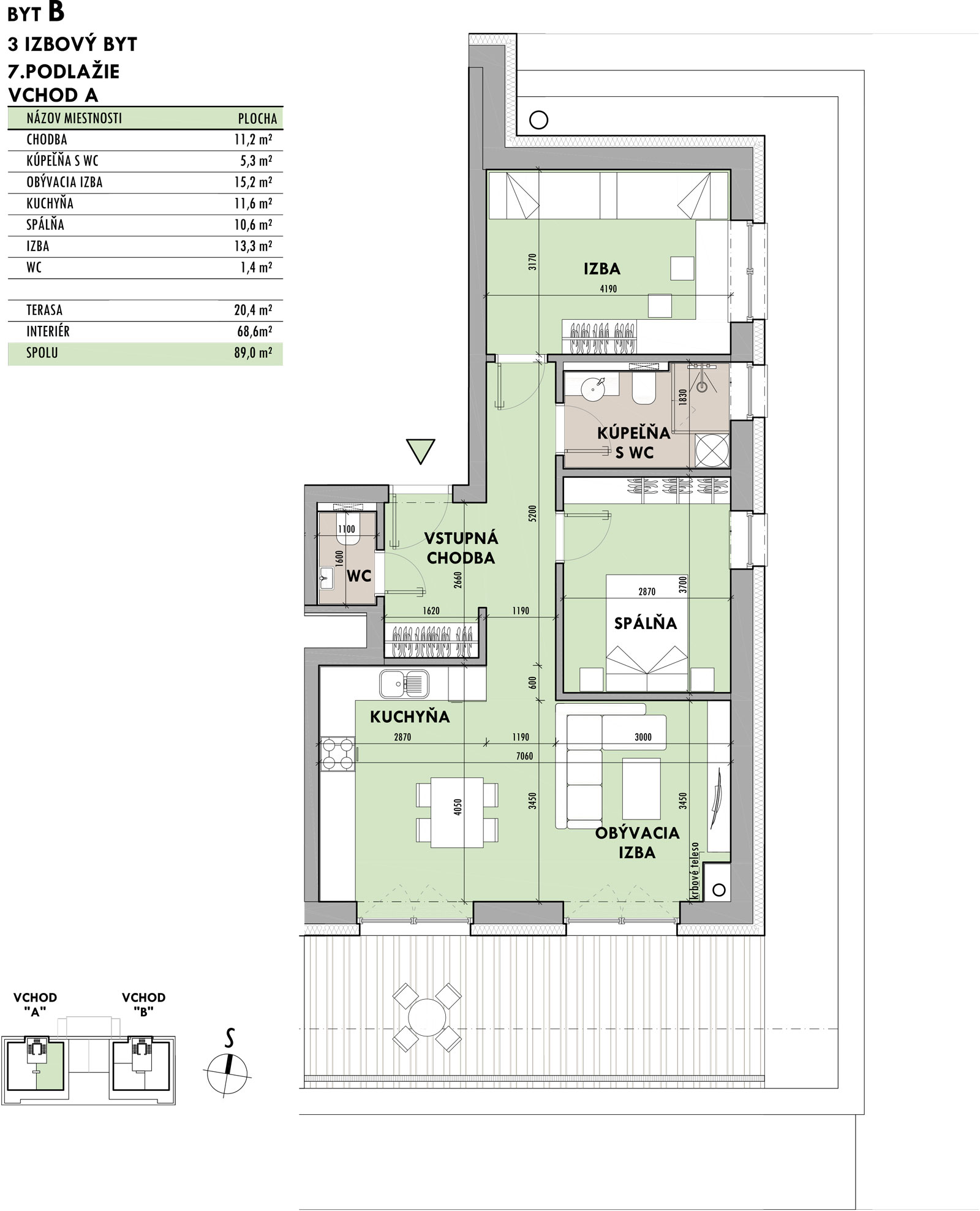
byt:
B7
Mesto / Obec:
Typ:
3-izbový byt
Poschodie:
7.NP
Rozloha:
68.6 m²
Exteriér:
20.4 m²
Cena:
228 999 €
Dostupnosť:
voľný
Moja Nehnuteľnosť
Profesionálna kalkulačka pre investície do nehnuteľností
Rezidencia Potôčik - B7 - Pôdorys
zdroj: https://potocik.sk/ponuka/siedme-nadzemne-podlazie-penthouses/b7-penthouse/